| Технічні характеристики | Од. виміру | HB-3/1 | HB-9/3 |
| Живлення | 220-240/1/50 | 380-415/3/50 | |
| Потужність допоміжного нагрівача | кВт | 3 | 9 |
| Максимальна споживана потужність | кВт | 3.2 | 9.2 |
| Максимальний вхідний струм | A | 15.8 | 16.2 |
| Електричний ударостійкий | I | I | |
| Клас IP | IPX1 | IPX1 | |
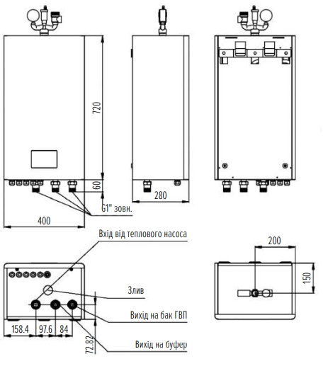
| Підключення до водопроводу | дюйм | G1 | G1 |
| Втрати тиску | кПа | 10 | 10 |
| Тиск води мінімум/максимум | МПа | 0.1/0.3 | 0.1/0.3 |
| Рівень звукового тиску | дБ(A) | 35 | 35 |
| Габарити (Д×Ш×В) | мм | 400×280×720 | 400×280×720 |
| Габарити в упаковці (Д×Ш×В) | мм | 460×355×862 | 460×355×862 |
| Вага нетто | кг | 31 | 33 |
| Вага брутто | кг | 34 | 36 |
| Розширювальний бак | л | 6 | 6 |
| Інтернет-шлюз | R485 | R485 |
